CUBES Residence Corbeanca - Ansamblu rezidential privat
DESPRE CUBES
Cubes Residence Corbeanca este o comunitate privata compusa din 8 vile, cu acces facil din Strada Balantei si DN1. La doar 3 minute de Aeroportul Henri Coanda, Complexul Comercial Carrefour (DN1 Value Center), Therme si Autostrada A0, Cubes ofera un plus real de confort zilnic.
Proiectate in jurul unor elemente arhitecturale moderne si finalizate in 2023, vilele Cubes imbina autenticitatea cu stilul, oferind un cadru ideal pentru familii moderne.
travertin, iar casele cu caramida aparenta tip
klinker.
oferind spatiu pentru relaxare,
plimbare si agrement.
complexului ofera 12 locuri de parcare.
facilitati
Amplasat la doar 10 minute de Baneasa Mall si avand acces la peste 20 de scoli si gradinite din Ilfov, alaturi de multiple facilitati sportive, CUBES este alegerea ideala pentru familii active care cauta siguranta, confort si liniste.
- Orientare SE & SV
- Suprafete vitrate over-sized
- Balustrade de sticla
- Ferestrele din aluminiu cu geam tripan Reynaers Aluminium
- Incalzirea in pardoseala
- Ventiloconvectoare (casete tip hotel)
- Sistem solar de incalzire a apei
- Camera tehnica echipata cu usa anti-incendiu
ce oferim
SPATII FLEXIBILE SI CONTEMPORANE
Am gandit locuintele CUBES pentru stiluri de viata moderne – cu zone deschise, lumina naturală si o arhitectura ce imbina eleganta cu functionalitatea.
ECHIPA DEDICATA DE PROIECTARE SI EXECUTIE
Colaboram cu specialisti in design, tehnologie si execuție, pentru a livra locuinte durabile, bine compartimentate si adaptate nevoilor reale ale familiilor.
BUCATARIE PREMIUM. PENTRU VIATA DE ZI CU ZI
Fiecare locuinta este dotata cu spatiu generos pentru bucatarie, ventilata natural si conectata fluent cu zona de dining.
SUNTEM AICI SA TE AJUTAM SA REUSESTI
De la prima vizionare si pana la mutarea efectiva, echipa noastra ofera consultanta completa – financiara, tehnica si juridica.
SPATII ORIENTATE CATRE OAMENI
Designul este gandit pentru confortul tau, cu zone de zi spatioase, dormitoare retrase si bai moderne. Am creat spatii in care sa te simti bine zilnic.
TEHNOLOGIE DE ULTIMA GENERATIE
Solutii moderne: incalzire in pardoseala, tamplarie premium, sistem de panouri solare, pompe de caldura si smart home.
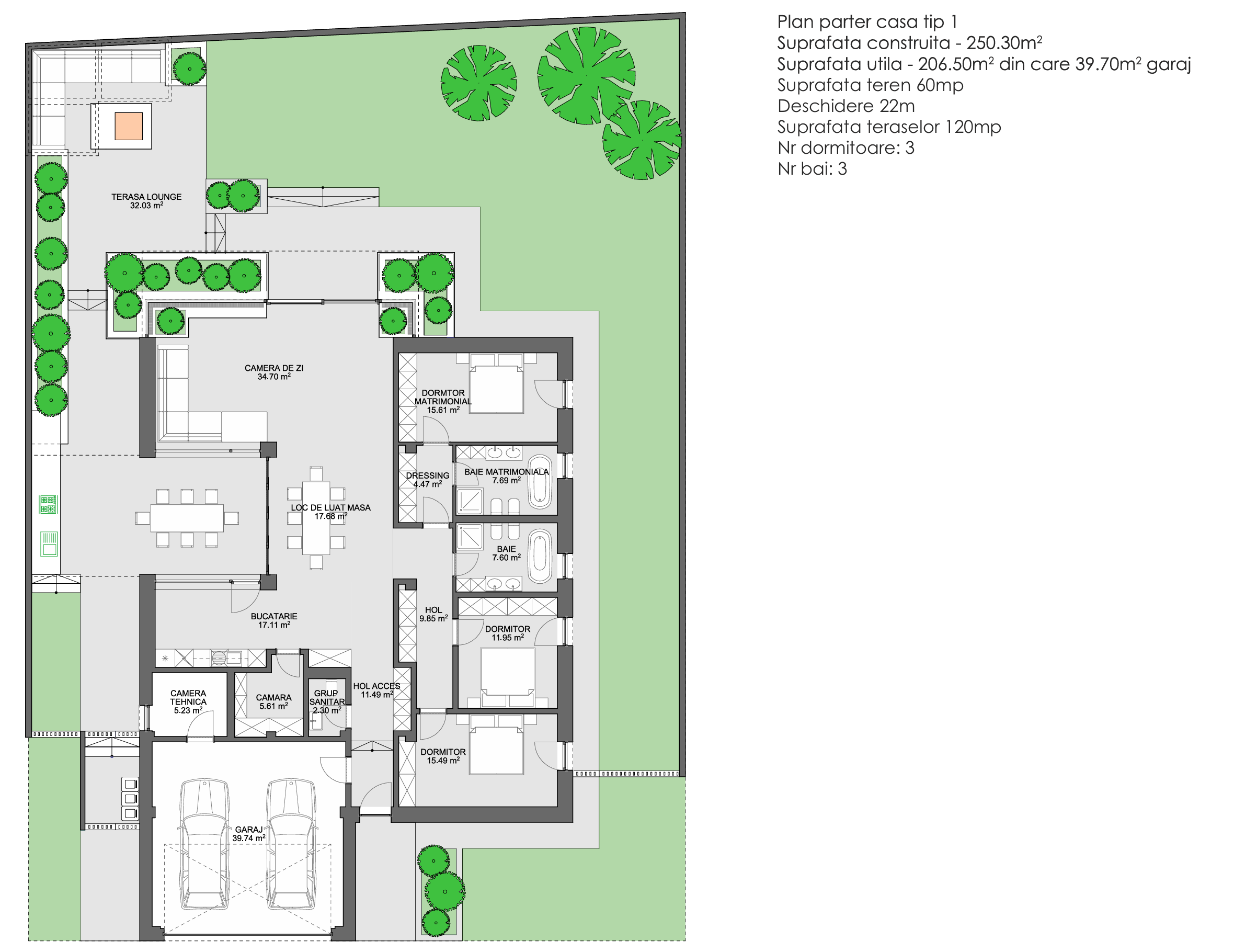
Accesul principal se deschide spre o zona de zi luminoasa, cu bucatarie open space, dining generos si finisaje atent alese. Compartimentare optimizata pentru confortul zilnic.
- suprafata construita 250.30 m²
- suprafata utila 206.50 m² din care 39.7 m² garaj)
- suprafata teren 60 m²
- deschidere 22
- dormitoare 3
- bai 3
Vila cu 3 dormitoare ofera un spatiu echilibrat, ideal pentru familii mici sau cupluri. Zona de zi este aerisita, cu acces catre terasa si bucatarie moderna.
- suprafata construita 294.50 m²
- suprafata utila 225.42m² din care 39.45m²garaj)
- suprafata teren 537 m²
- suprafata teraselor 85 m²
- deschidere 23 m
- dormitoare 3
- bai 3
- suprafata construita 276.50 m²
- suprafata utila 210.40 m² din care 39.45 m² garaj)
- suprafata teren 570 m²
- suprafata teraselor 85 m²
- deschidere 22 M
- dormitoare 4
- bai 4